It has taken a village to create but after a lot of blood, sweat and tears the results show it was all worth it.
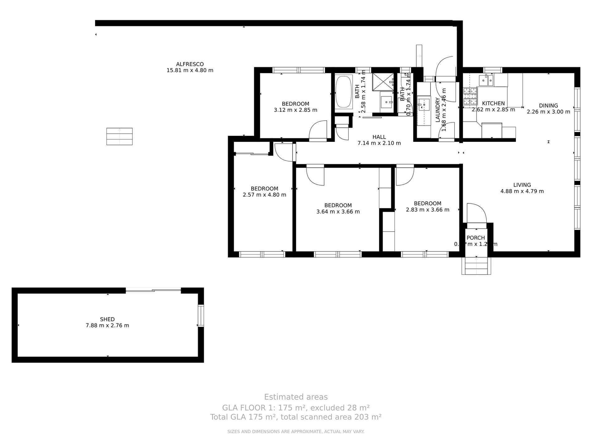
On offer is a 4 bedroom brick veneer home with a complete renovation. It's stylish, practical and spacious.
Comprising:
- 4 good size bedrooms (3 with robes)
- Open design kitchen, meals and living area.
- Brand new bathroom with modern design and fittings.
Outside no less impressive with room for the whole family.
- Workshop/storage shedding/man cave.
- Undercover paved outdoor entertaining area flowing onto lounge area with fire pit.
- Lawned area.
- Good fencing.
Properties of this size and quality rarely available.
Features
- Air Conditioning
- Split-System Air Conditioning
- Split-System Heating
- Outdoor Entertainment Area
- Shed
- Fully Fenced
- Built-in Wardrobes
- Workshop
- Dishwasher
- Floorboards



































