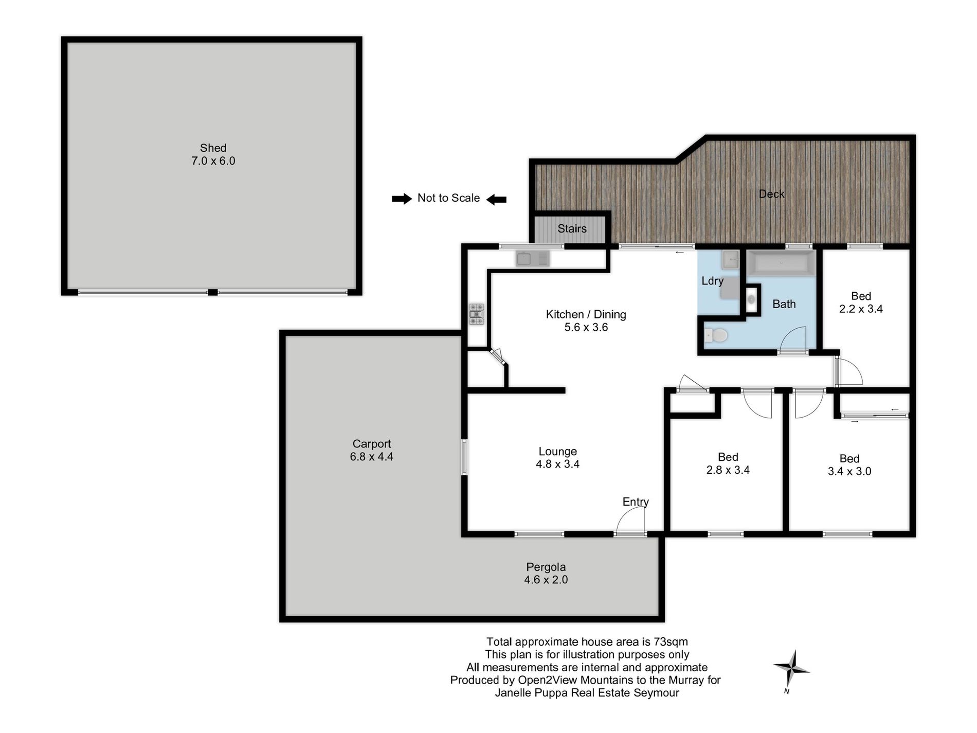
Neat and tidy with recent works carried out, 24 Hanley Cres is an ideal opportunity to purchase your 1st home or add to your investment portfolio with the current tenant happy to stay on.
Freshly painted, new kitchen & new floor coverings the home offers 3 bedrooms (2 with BIR's), new kitchen with meals area and adjoining lounge room. Spacious decked, undercover outdoor entertaining area at the rear, fenced yard & car accommodation.
With ceiling fans throughout and split system in living area you will have climate comfort all year round.
Priced to sell.
Property Code: 843





















