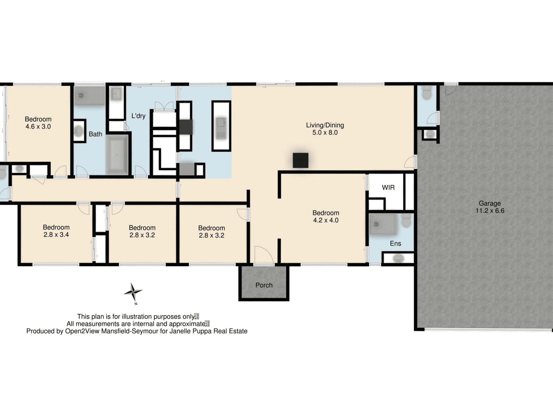
Stunning 4 bedroom home on approx 6 acres with creek frontage. Only 4.2km's from town centre with town water connected, 238 Highlands Road is an ideal opportunity for a young family to settle.
Built by reputable local builder with completion in 2017 the home is like brand new.
- 4 good size bedrooms, master with walk in robe, bedrooms 2, 3 & 4 built in robes.
- Spacious open plan kitchen, meals & living area with modern flooring, exposed bricks and quality fittings.
- Walk through laundry with plenty of cupboard space.
- Fully tiled bathrooms.
- 3 car lock up garage with extra toilet and wash trough.
- Fully fenced block.
Great location, family size, room outside for the kids & shedding and almost new...... 238 Highlands will be sure to impress upon inspection.
Property Code: 495



























